襯膠閥門

GJ6K41X常開型氣動管夾閥
GJ6K41X-6L 常開型氣動管夾閥可為常開型、常閉型,又名氣動夾管閥,氣動膠管閥由上下鑄鐵、鋁合金、不銹鋼閥體,橡膠管套、大小閥桿閘板、上下導柱等零件組成。
GJ6K41X常開型氣動管夾閥產品概述:
GJ6K41X-6L 常開型氣動管夾閥可為常開型、常閉型,又名氣動夾管閥,氣動膠管閥由上下鑄鐵、鋁合金、不銹鋼閥體,橡膠管套、大小閥桿閘板、上下導柱等零件組成。當順轉手輪時,使大小閥桿同時帶動上下茬板、壓縮管套、進行關閉,反之即行開啟。這樣,閘板在導柱之間上下往復完成閥門開閉工作,另因橡膠管套或承力小,所以在開閉時,操作人員旋轉輪時只要感到適量抵觸,均達到開閉極點。切勿盡力多人補助,禁用其他工具開閉。
GJ6K41X常開型氣動管夾閥性能規范:
| 適用溫度 | 適用介質 |
| ≤85℃ | 礦漿、磨料、干濕型粉塵類 |
GJ6K41X常開型氣動管夾閥主要零件材料:
| 名稱 | 材料 |
| 閥體 | 鋁合金、鑄鐵、鑄鋼 |
| 套管 | 橡膠 |
| 閥桿 | 鑄銅、碳鋼 |
| 壓桿 | 鑄鐵 |
| 氣缸 | 組合件 |
| 托架 | 球墨鑄鐵 |
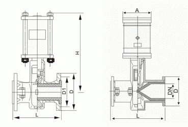
GJ6K41X常開型氣動管夾閥主要外形尺寸:

| 公稱通徑 (DN) | 公稱壓力 (MPa) | 工作壓力 (MPa) | L | L1 | L0 | D | D1 | D0 | H | Z-Φ | 重量 (kg) |
| 25 | 0.6 | 0.6 | 160 | 124 | 31 | 115 | 85 | 120 | 150 | 4-14 | 3 |
| 32 | 165 | 145 | 40 | *140 | 100 | 140 | 174 | 4-18 | 4.5 | ||
| 40 | 190 | 157 | 50 | *150 | 110 | 140 | 186 | 4-18 | 5.5 | ||
| 50 | 210 | 160 | 60 | 160 | 125 | 160 | 205 | 4-18 | 7.5 | ||
| 65 | 250 | 199 | 74 | 180 | 145 | 160 | 238 | 4-18 | 9.0 | ||
| 80 | 300 | 222 | 88 | 195 | 160 | 200 | 241 | 4-18 | 13.5 | ||
| 100 | 350 | 250 | 106 | 215 | 180 | 240 | 301 | 8-18 | 20 | ||
| 125 | 430 | 318 | 134 | 245 | 210 | 280 | 360 | 8-18 | 27.5 | ||
| 150 | 500 | 350 | 158 | 280 | 240 | 320 | 405 | 8-23 | 43 | ||
| 200 | 0.4 | 0.4 | 650 | 446 | 206 | 335 | 295 | 560 | 545 | 8-23 | 85 |
| 250 | 800 | 516 | 256 | *395 | 350 | 560 | 632 | 12-23 | 138 | ||
| 300 | 950 | 562 | 304 | *445 | 400 | 620 | 741 | 12-23 | 195 |
相關產品


